2022永利集团建筑学办学40周年系列纪念活动
春华秋实四十载,桃李芬芳满神州。2022年是永利集团建筑学专业40周年华诞,也是永利集团创办70周年。我们谨向多年来一直关心、支持建筑学专业建设和发展的各界朋友致以最衷心的感谢和崇高的敬意!为此,我们将举办建筑学办学40周年系列活动,新建筑“云展”是活动之一,精选推出历届杰出员工作品,为华中大建筑学人绘出集体群像。

刘建先生于1994年毕业于永利集团建筑学系,1997年研究生毕业于东南大学建筑研究所,师从齐康教授。现任职加拿大宝佳国际建筑师有限公司北京代表处总建筑师,高级绿色建筑师,高级工程师。
从事建筑专业设计约20年,专业研究方向主要为城市更新、产业园区、酒店及别墅和养老建筑。参与制定了《中国绿色养老住区联合评估认定体系》,设计多次荣获竞赛一等奖。
公共建筑
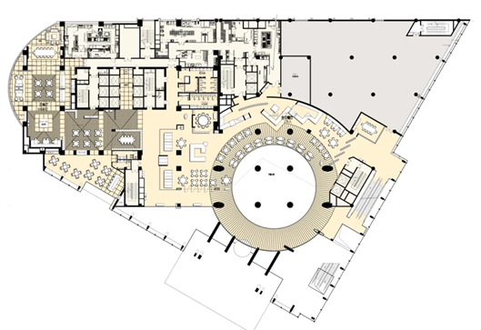
01太原凯宾斯基酒店
Kempinski Hotel Taiyuan
项目地点:山西,太原
项目状态:建成
建筑面积:5.6万平方米
400间客房
太原凯宾斯基酒店位于太原市小店区长风街,是山西省太原市首家国际五星级酒店,是山煤集团转型发展的一个标志。
客房楼高度100米,27层,标准层为椭圆形平面。裙房5层。设计目的是在原有紧凑的建筑体型增加一个楔形玻璃块,作为酒店的中庭,面向南侧的千禧世纪广场。作为酒店的活力空间,它有效地扩大了酒店公共区域,也成为客人和市民可以休閒的地方。
为了获得更好的通透感,幕墙采用大尺寸的超白玻璃,仅保留竖向的划分。室内和室外空间在视觉上形成连接,从而将酒店室内变成城市中的一部分,同样地,城市也成为了酒店的一部分。












02克拉玛依雪莲宾馆
Karamay Snow Lotus Hotel
项目地点:新疆,克拉玛依
项目状态:建成
建筑面积:2.7万平方米
占地面积:17万平方米
270间客房
克拉玛依位于准噶尔盆地西北边缘,是新中国诞生后在戈壁荒漠上建立的第一座石油城。90年代以后注重城市规划和建设,荣获国家环境模范保护城市等多项荣誉。
克拉玛依雪莲宾馆位于建设在克拉玛依新城油建南路,是克拉玛依的第一个五星级酒店。设计方案在克拉玛依规划局举办的国际竞标中获得了一等奖。
“大地艺术”理念的体现
大地艺术是一种由建筑,景观,大地,人共同组成的人造环境艺术。将建筑、规划和景观用一种肌理统一。
建筑设计吸取了细胞生长理论,用一种可以自由生长组合的建筑单体元素——天山雪莲为基础,也形成了八个以当地植被为主题的庭院。
建筑的内中庭和外庭院加强了建筑和景观的融合,表达了克拉玛依市这座资源城市追求可持续发展的目标。






地域性绿化景观
1、在酒店外围及内部通过不同树种的搭配,形成外围四季林茂绿浓,树木环抱的森林景象;内部四季分明,春季花团锦簇,秋冬色彩斑斓,阳光普照。
2、平面布局的疏密与垂直层次的增加使植物景观实现了由南向北从相对开敞到逐渐茂郁的过渡,植物由低到高的布局也使景深效果得以加强。
3、各个区的植被和景观主题有所不同,为每个组团增加不同季节的景观主题和亮点。同时重视四季树种的选择与搭配,特别是在水岸等视觉中心节点位置创造出一处“水彩树影”。
03北京金融街鑫茂大厦
Beijing XinMao Office Building
项目地点:北京
项目状态:建成
建筑面积:12.8万平方米
占地面积:1.23万平方米
鑫茂大厦位于北京西城区金融大街,由两栋100米的高层L 型布局,底层裙房连通 。是北京金融街区重要的办公建筑之一,外观设计体现现代金融业的高贵典雅,诚信可靠的行业特征。在追求大气、简洁、雄伟的同时,又不失流畅、典雅的风格。


居住建筑
04北京碧海方舟别墅区
Beijing BihaiFangZhou Villas
项目地点:北京
项目状态:建成
建筑面积:7.7万平方米
占地面积:12万平米
碧海方舟别墅区位于北京市朝阳区姜庄路,北四环和京承高速西北角,东侧、北测和南测三面环绕18洞的北辰高尔夫球场,是北京城市高尔夫地产别墅的代表之一。北辰高尔夫球场与别墅开发紧密联系,互相配套补充,体现出最舒适、最休闲的生活方式。
园区55栋别墅,南区采用组团式布局,北区采用线性布局。外观采用北美折衷主义风格,曾荣获全国十大豪宅之一。


源于自然、融于自然”,整体形态延伸高尔夫球场流畅开阔的景观特征和起伏有致的地貌特点,南区采用苜蓿叶组团,增大了地势起伏的可能性。北区建筑单体沿湖面和球场方向顺势伸展。

北区用地以25米宽度为单位进行水平向划分,户型单元呈多重进深院落。

高尔夫别墅不只是房子也是一种生活方式。怎么结合高尔夫的文化和环境,而不仅仅是表面的豪华。
因此建筑造型强调水平向延展,屋顶以缓坡顶为主,出檐应适当深远,形成贴伏于地面的感觉。

北区别墅建筑追求水平向延展,屋顶以缓坡顶为主,形成贴伏于地面的感觉。
将建筑形体打散重组,进行空间序列的整合,内部流线旁边都是景色,建筑也与大的景观相融。在空间表达上,外实内虚,开放与封闭充满着韵律感,边院、旁院、侧院;既封闭又开放。

由于每块用地进深不同,建筑呈现出错落有致的布局。
高尔夫运动紧密的结合了大自然,虽然高尔夫别墅大多采用古典风格,但更看重和环境的融合,采用质朴天然的材料。

会所沿入口轴线分为东西两部分,化解了较大的功能体量,轴线上是半亭的造型,联系了东西两部分,同时将入口轴线引到湖边。





即使是古典的建筑风格,经过空间序列的整合,整个建筑也会和大的景观相融。空间的开放与封闭充满着韵律感。


公寓建筑的立面主材考虑自然和人的亲和性,色泽材质贴近自然土壤的文化石,陶土瓦与浅色涂料墙面营造出于自然合一的朴实质感。


05北京融泽府居住区
Beijing Rongzefu Mansion
项目地点:北京
项目状态:建成
建筑面积:6.3万平方米
占地面积:1.3万平米
融泽府位于北京市西城区真武庙五里,规划借鉴蒙德里安的绘画特点,利用水平线和垂直线的网格将7栋16层左右的住宅和场地景观组织在一起。建筑采用黑白灰,景观采用三原色,将二维的绘画作品转换为三维的建筑造型和四维的建筑空间。项目曾荣获中国经典楼盘奖和国家精锐科学奖。


借由绘画的基本元素:直线和直角(水平与垂直)、三原色(红黄蓝)和三个非色素(白、灰、黑),这些有限的图案意义与抽象相互结合,象征构成自然的力量和自然本身,静观万物内部的安静。





城市更新
城市更新的是人的观念,是人对城市的认知。
06老挝万象赛色塔综合开发区
Vientiane Saysettha Development Zone
项目地点:老挝人民民主共和国,万象
项目状态:实施中
占地面积:11.5 平方公里
项目位于老挝民主共和国首都万象市,是中国在老挝唯一的国家级境外经贸合作区,是中国“一带一路”合作倡议下中国海外园区的“产城融合”多元化发展的探索。
规划以“万象之光”为立意,将一块产业飞地转变为中南半岛上中国、老挝和泰国的经济枢纽,将一个封闭内向单一的工业园转变为开放外向,复合的万象子中心。
2020年中国生态环境部与老挝自然资源与环境部共同将万象赛色塔开发区确定为低碳示范区,做为东南亚国家低碳环保城市建设的典范。
今天的工业园对于宗主国来说不是当地资源的抽水机,而是当地产业发展的吸铁石,将更多资金、先进的技术和优秀人才吸引过来,为老挝的经济发展和中国海外园区的建设积累经验。


作为园区的视觉中心,北湖面积约800亩,以双心湖(heart to heart)为立意,象征着中国和老挝的友谊。
一带一路倡议中的“政治互信、经济融合、文化包容”对项目的发展会起到引领的作用。政治互信使得项目获得了两国政府间的政策支持,文化包容体现在对当地文化和习俗的尊重,经济和生活条件的改善,得到民间的理解和认同。这两个方面的支持有利于经济建设的顺利进行。
园区分为工业区、核心区和新城区,由一条约4公里长的中心轴线串联。赛色塔核心区占地2.7平方公里,包括智慧南区+生态北区,南区将以斯坦福大学为蓝本,北区将以琅勃拉邦为蓝本。成为园区的大脑和绿肺,象征着着智慧和生态的结合。
07昆明五里中央商务区
Kunming Wuli Central Business District
项目地点:云南,昆明
项目状态:实施中
占地面积:1平方公里
地处昆明城市核心区的五里片区作为昆明二环内最大的城中村改造项目,是2008年开始的382个昆明城中村改造项目中为数不多的成功案例。经过近10年的努力,官渡区五里多片区改造项目已经由一个没落的旧城和城中村成长为昆明五里中央商务区。
如何更新衰败的区域,维持城市的活力?
将产业设计和规划设计相结合,更新对城市开发的认知。以城市经营的思路改变简单追求土地增容来平衡开发成本的做法,规避项目商业的风险,为项目落实产业的定位,找到切实可行的发展方向。




2015年华润置地进入昆明,基于规划方案开始和三联置业合作,逐步将形成一个涵盖酒店、超高层写字楼、住宅、文化教育中心和SOHO公寓的大型城市综合体,是昆明核心区城市更新的成功案例之一。



